Heubelüftungsanlagen
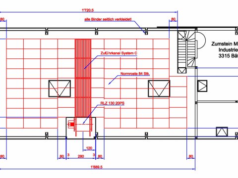
Unter Berücksichtigung der Gegebenheiten vor Ort, den Bedürfnissen des Kunden, der Stockgrösse und aller relevanten Faktoren, planen und berechnen wir die optimale Heubelüftungsanlage für Ihren Betrieb.
Nach Bedarf liefern wir Ihnen auch die komplette Rostanlage mit Zuführkanal, Umstellkästen für mehrere Heustöcke oder Luftumlenkgitter.
Auch die Planung und Berechnung einer Sonnenkollektoranlage oder Spezialanfertigungen von Radiallüftern nach Ihren Vorgaben oder für andere industrielle Zwecke, ist dank unserer langjährigen Erfahrung auf diesem Gebiet kein Problem.
Die präzise Planung und Berechnung einer Heubelüftungsanlage ist die Basis für Ihren Erfolg!
Lassen Sie sich von unseren Spezialisten beraten und verlangen Sie eine unverbindliche Offerte!

Radiallüfter

Steuerung

Beispiel Offertplan
